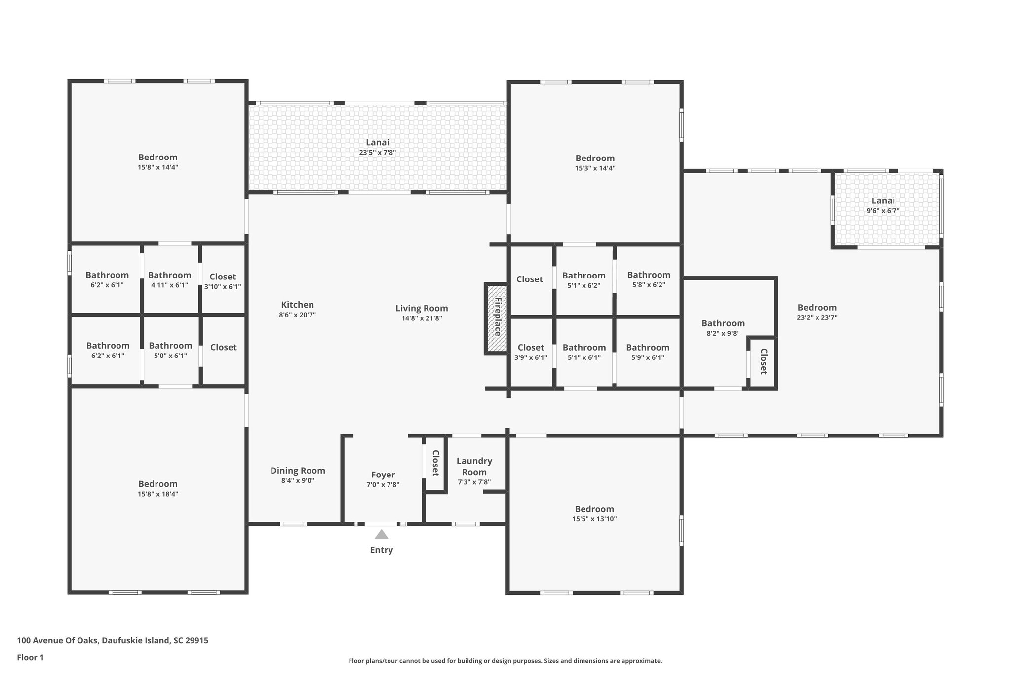
100 Avenue of Oaks, Daufuskie Island, SC 29915
Toggle Navigation
Images
Floor Plans
3D Tour
Map
100 Avenue of Oaks
Daufuskie Island, SC 29915
Scroll to Content
Images
Slideshow
Photo Grid
Hide
Previous
Next
Show more
Floor Plans
Slideshow
Photo Grid
Hide
Previous
Next
3D Tour