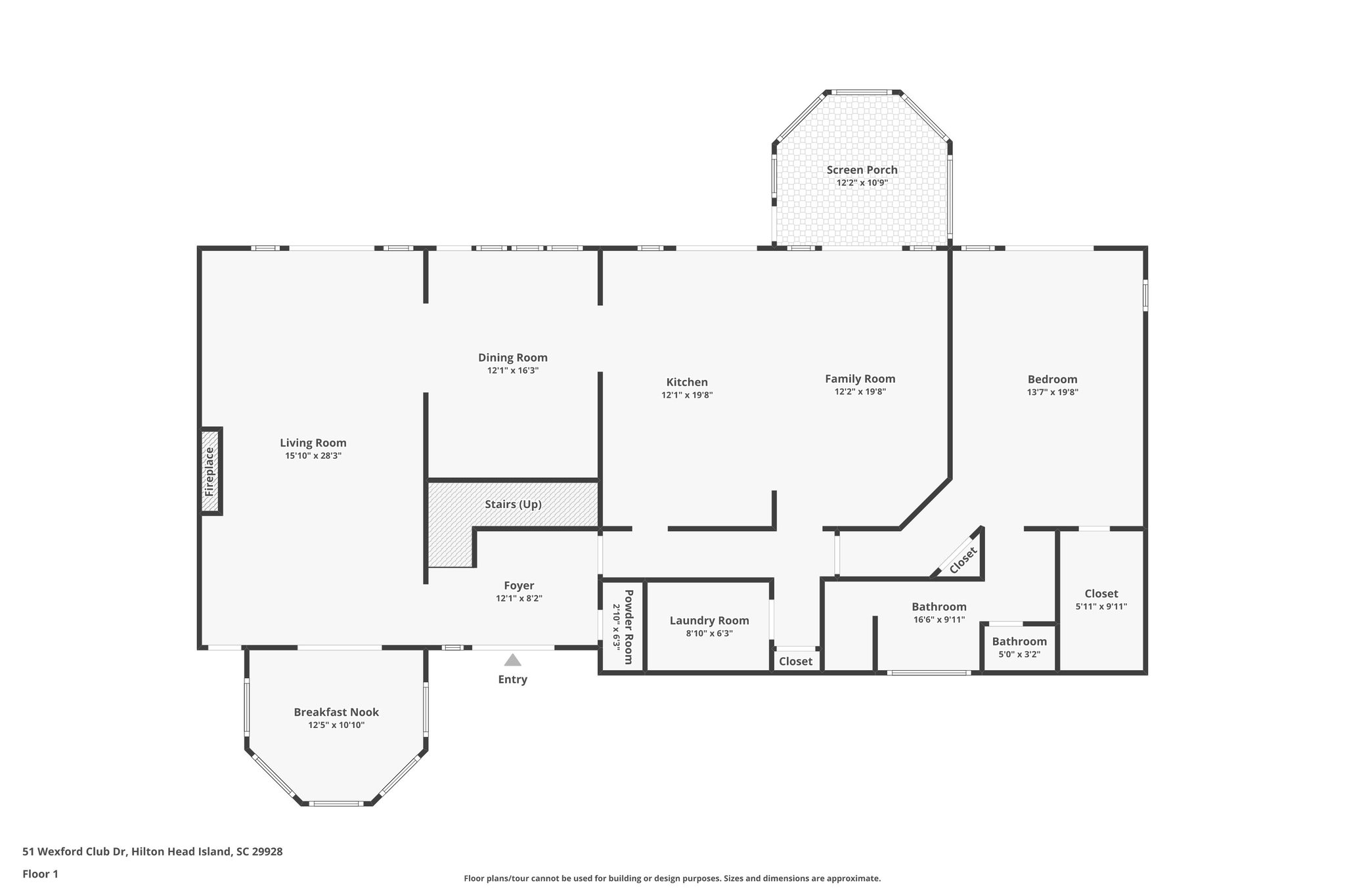
51 Wexford Club Dr, Hilton Head Island, 29928
Toggle Navigation
Images
Floor Plans
3D Tour
Map
51 Wexford Club Dr
Hilton Head Island, 29928
Scroll to Content
Images
Slideshow
Photo Grid
Hide
Previous
Next
Show more
Floor Plans
Slideshow
Photo Grid
Hide
Previous
Next
3D Tour